Геодез Плюс
4
Рейтинг
Как считается
?
Точный рейтинг
4.00
Составляющие
Профиль
4
Подробнее о новом рейтинге
Заказы
Средняя оценка
0.0
На что влияет
?

Общее количество выполненных заказов показывает востребованность мастера.

Количество отзывов и оценка показывают, как другие пользователи оценивают мастера.

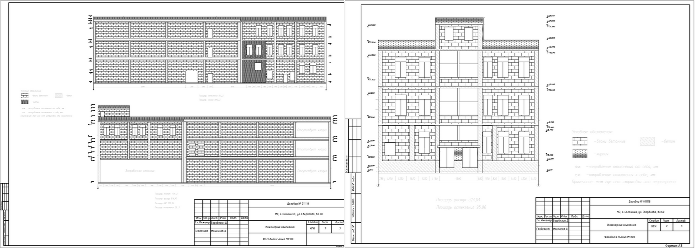
Фасадная съемка здания торгового центра в г. Балашиха

Написать нам

Нажимая на кнопку «Отправить», я подтверждаю свое согласие на «Политику в отношении обработки персональных данных» и принимаю «Пользовательское соглашение».